
PMP noleggio macchine movimento terra
PMP (Pradamano – Udine) noleggio macchine movimento terra – piattaforme
L’Officina Meccanica Paravan SNC, nasce a metà degli anni 70 nella laboriosa provincia friulana ad opera dei due fratelli Maurizio e Paolo Paravan, come azienda di assistenza e manutenzione di mezzi agricoli, movimento terra ed acciaieria.
Con l’evoluzione tecnologica e la voglia della proprietà di diversificare il campo degli investimenti, come azienda specializzata inizialmente nell’import-export di macchine agricole.
Dopo alcuni anni nasce nel 1991 la P.M.P. srl, vista la crescente richiesta di macchine a noleggio Maurizio e Paolo si specializzano in questo campo ed ampliano l’attività creando un moderno parco macchine, comprendente piattaforme aeree, mezzi movimento terra compatti ed autocarri.
A metà degli anni 2000, con l’ingresso in azienda di Marco, figlio di Maurizio, si completa la diversificazione del business aziendale: vengono rese operative una sezione che si occupa di trasporti, movimentazioni e montaggi c/terzi con l’ausilio di autocarri dotati di gru ed una sezione che effettua l’assistenza alla posa dei vetri con mini gru cingolate, ventose ed altre attrezzature.
Oggi, con un parco di 70 mezzi a noleggio che coprono svariati settori produttivi e 4 autocarri dotati di gru, l’Officina Meccanica Paravan SNC e la P.M.P. srl sono pronte ad affrontare le sfide lavorative dei prossimi decenni.
Soluzione MEC GRU in stretta collaborazione con GRU REED
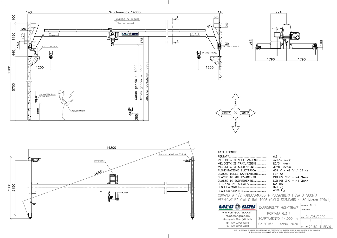
La peculiarità del progetto è stata quella di progettare una gru a ponte in esecuzione monotrave speciale e consentire al committente di ottenere l’alzata utile minima sotto al gancio di 6 m, che consente di caricare le macchine a noleggio sui camion con facilità ed ampi margini di sicurezza.
Il supporto commerciale alla vendita, i rilievi tecnici dimensionali, il montaggio ed il collaudo della gru sono stati effettuati da Gru Reed – www.grureed.it, società giovane e dinamica che opera con competenza e serietà nel campo del sollevamento industriale nella regione Friuli Venezia Giulia ed in generale nell’area del triveneto. I due soci David Gazzetta e Marco Panzalis sono operativi direttamente sul campo e garantiscono la migliore attività di manutenzione ordinaria e straordinaria agli impianti di sollevamento con interventi rapidi e risolutivi. Gru Reed dispone di un ampio magazzino di ricambi multimarca per ridurre al minimo i tempi di fermo gru. Gru Reed consiglia la soluzione per il sollevamento più opportuna e performante, distribuisce ed installa sul territorio i paranchi a catena ed a fune SWF, i radiocomandi Telecrane Italia, gru a bandiera, gru a ponte e altri prodotti del settore garantendo prezzi competitivi ed elevata qualità dei prodotti proposti.
Progettazione – costruzione – montaggio e collaudo di n°1 gru a ponte monotrave senza cavi a vista portata 6300 kg scartamento 14m assemblata con kit componenti SWF completa di paranco a fune originale Nova e radiocomando Telecrane Italia.
I Plus
- Soluzioni custom utilizzando componentistica (quale paranco – motori – testate – quadri elettrici) standardizzata tedesca SWF.
- Migliore utilizzo possibile dello spazio disponibile (alzata sotto al gancio – accostamenti laterali).
- Alimentazione paranco con catena portacavo – gru senza cavi a vista, soluzione moderna, avanzata, esteticamente pulita e gradevole.
- Gestione completa della fornitura al cliente dal progetto preliminare,al montaggio e collaudo dell’impianto.
- Radiocomando Telecrane Italia di elevata affidabilità.
- Tre anni di garanzia di serie.
Alcune foto

